Property Features
Osney Way, Gravesend, DA12 2NB
About the Property
GREENLEAF PROPERTY SERVICES are pleased to present this charming two bedroom house for sale, located on a no-through road, in the highly sought after village of Chalk. Boasting off road parking for two cars, a pleasant rear garden and a garage with rear access, this beautifully presented family home has been well cared for by the current owners and is simply ready to move into and enjoy.
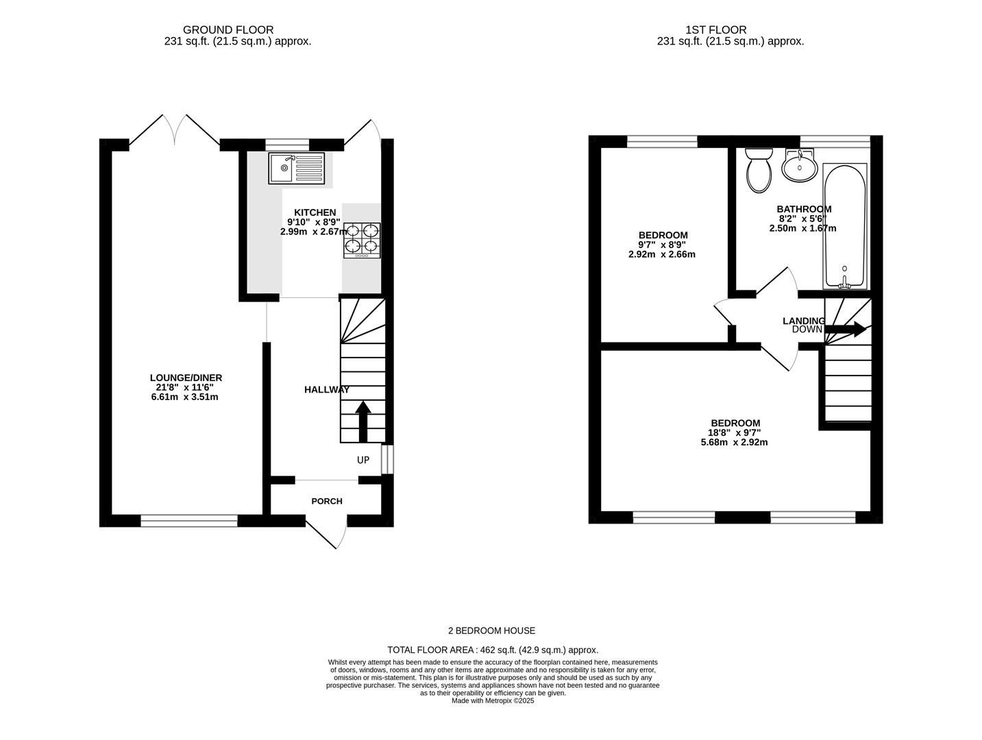
The layout briefly comprises of a bright entrance hallway giving access to the spacious lounge/dining room with patio doors into the rear garden; The modern fitted kitchen with integrated fridge freezer, oven, hob, microwave, washing machine and slimline dishwasher leads out to the rear garden with a large patio and access to the garage. The first floor landing gives access to two double bedrooms and the family bathroom.
With the property further benefitting from gas central heating and double glazing, interest is sure to be strong in this ready-to-move-into family home, we therefore recommend viewing at your earliest convenience to avoid disappointment.
Chalk’s major claim to fame is its connection with Charles Dickens. Here he spent his honeymoon with his new bride, Catherine Hogarth; and it was here that he wrote the early installments of Pickwick Papers. He also used the old forge in the village as a model for Joe Gargery’s cottage in Great Expectations. This fantastic first-time buyer’s property is conveniently located for the town centre, highly regarded schools, and just a short distance to the A2/M2 road links and Cascades Leisure Centre.
- TWO BEDROOM SEMI-DETACHED HOME LOCATED ON A NO-THROUGH ROAD
- IN THE HEART OF THE SOUGHT AFTER VILLAGE OF CHALK
- OFF-STREET PARKING TO FRONT FOR TWO CARS / GARAGE TO REAR
- CLOSE TO HIGHLY REGARDED SCHOOLS, TOWN AND SHOPS
- IDEAL FOR FIRST TIME BUYERS
- GAS CENTRAL HEATING AND DOUBLE GLAZING
- SPACIOUS OPEN-PLAN LOUNGE / DINER
- SHORT DRIVE TO GRAVESEND TOWN CENTRE
- BEAUTIFULLY PRESENTED THROUGHOUT
- FREEHOLD / EPC GRADE D / COUNCIL TAX BAND D
Property Details
Entrance Hall
2.9 x 1.9 (9'6" x 6'2")
Bright and light entrance hall with porcelain tile flooring, window to the side and under stairs storage cupboard.
Lounge/Dining Room
6.3 x 3.5 (20'8" x 11'5")
Lounge/dining room with large window overlooking the front of the property, modern neutral carpet and decor, radiators and double doors to rear garden.
Kitchen
3.02 x 2.6 (9'10" x 8'6")
Modern kitchen with a range of white gloss wall and base units. With integrated fridge freezer, oven, microwave, washing machine and slimline dishwasher. Rear door to garden.
Bedroom One
2.9 x 4.6 (9'6" x 15'1")
Good size master bedroom, neutral carpet and decor, window overlooking the front, radiator.
Bedroom Two
2.6 x 2.9 (8'6" x 9'6")
Double bedroom to the rear of the house with laminate flooring, radiator and overlooking the rear garden.
Bathroom
2.5 x 1.67 (8'2" x 5'5")
White suite with vanity unit, bath and overhead shower, tap and shower heads controlled via fitted panel to tiles.
Garden
Rear garden with large L shape patio, lawn, border and garage. Access to the rear via Oxford Close off Rochester Road.
Off Road Parking
Block-paved off road parking to front for two cars.
Agents Note 1
Greenleaf work closely with qualified, trusted and competitive mortgage consultants and local solicitors, enabling clients the time-saving opportunity of keeping all aspects of buying and selling a property under one roof. For this service we receive a fee of between one and two hundred pounds per referral.
Agents Note 2
We endeavour to make our sales particulars accurate and reliable, however, they do not constitute or form part of an offer or any contract and none is to be relied upon as statements of representation or fact. Any services, systems and appliances listed in this specification have not been tested by us and no guarantee as to their operating ability or efficiency is given. All measurements have been taken as a guide to prospective buyers only, If you require clarification or further information on any points, please contact us. Fixtures and fittings other than those mentioned are to be agreed with the seller by separate negotiation.
Agents Note
It is to be noted that the vendor of this property is a person connected with Greenleaf Property Services as defined in the Estate Agents Act 1979
