Property Features
Gordon Road, Gillingham, ME7 2NE
About the Property
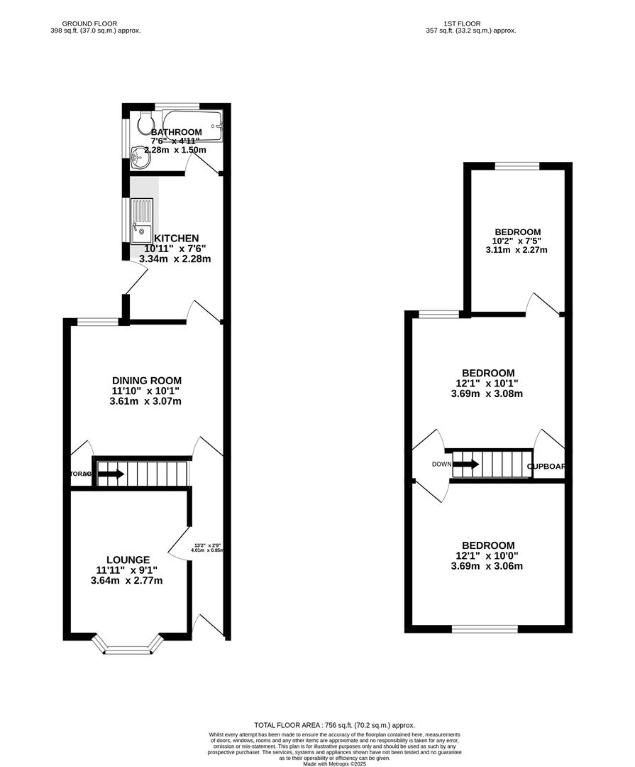
GREENLEAF PROPERTY SERVICES are delighted to introduce this three bedroom house to the market, in a sought after residential location in Gillingham, Kent, and available with NO ONGOING CHAIN. Whilst in need modernising, this property boasts three bedrooms ( third of the second), two reception rooms and a good size rear garden, and would ideally suit an investor looking to add to their portfolio.
The layout briefly comprises of: Hallway, lounge, separate dining room, kitchen and bathroom W/C. To the first floor there are three bedrooms ( third off the second).
Located close to local shops and amenities, open green spaces and parks, schools for all age groups are also nearby. The Medway hospital and station with fast trains to London are a short distance away, as is Gillingham town centre with its vast array of shopping, dining and leisure facilities, whilst all A2/M2/M20 road links are a short drive away.
Council Tax Band B. EPC Grade Awaited
- IN NEED OF MODERNISATION
- NO CHAIN!
- POPULAR RESIDENTIAL AREA
- THREE BEDROOMS (THIRD OFF THE SECOND)
- TWO RECEPTION ROOMS
- GROUND FLOOR BATHROOM W/C
- GOOD SIZE REAR GARDEN
- IDEAL INVESTMENT OPPORTUNITY
- EPC GRADE AWAITED
- COUNCIL TAX BAND B
Property Details
Entrance Hall
4.09 x 0.85 (13'5" x 2'9")
Lounge
3.64 x 2.76 (11'11" x 9'0")
Dining Room
3.68 x 3.07 (12'0" x 10'0")
Kitchen
3.34 x 2.28 (10'11" x 7'5")
Bathroom W/C
2.28 x 1.5 (7'5" x 4'11")
First Floor
Entrance to bedrooms.
Bedroom
3.69 x 3.06 (12'1" x 10'0")
Bedroom
3.69 x 3.08 (12'1" x 10'1")
Bedroom
3.11 x 2.27 (10'2" x 7'5")
Rear Garden
A good size.
Agents Note
We endeavour to make our sales particulars accurate and reliable, however, they do not constitute or form part of an offer or any contract and none is to be relied upon as statements of representation or fact. Any services, systems and appliances listed in this specification have not been tested by us and no guarantee as to their operating ability or efficiency is given. All measurements have been taken as a guide to prospective buyers only, If you require clarification or further information on any points, please contact us. Fixtures and fittings other than those mentioned are to be agreed with the seller by separate negotiation.
Agents Note
Greenleaf work closely with qualified, trusted and competitive mortgage consultants and local solicitors, enabling clients the time-saving opportunity of keeping all aspects of buying and selling a property under one roof. For this service we receive a fee of between one and two hundred pounds per referral.
