Property Features
Cecil Avenue, Rochester, ME2 3EA
About the Property
GREENLEAF PROPERTY SERVICES are delighted to introduce this beautifully presented mid-terraced house to the market, in ever-popular Strood, Rochester. Boasting three good size separate bedrooms, a modern kitchen and bathroom, separate lounge and dining room, and a low maintenance private rear garden, this recently refurbished bay-fronted family home is simply ready to move into and enjoy. Further benefits include plenty of storage throughout, many original character features, and a cul-de-sac location a short walk to town.
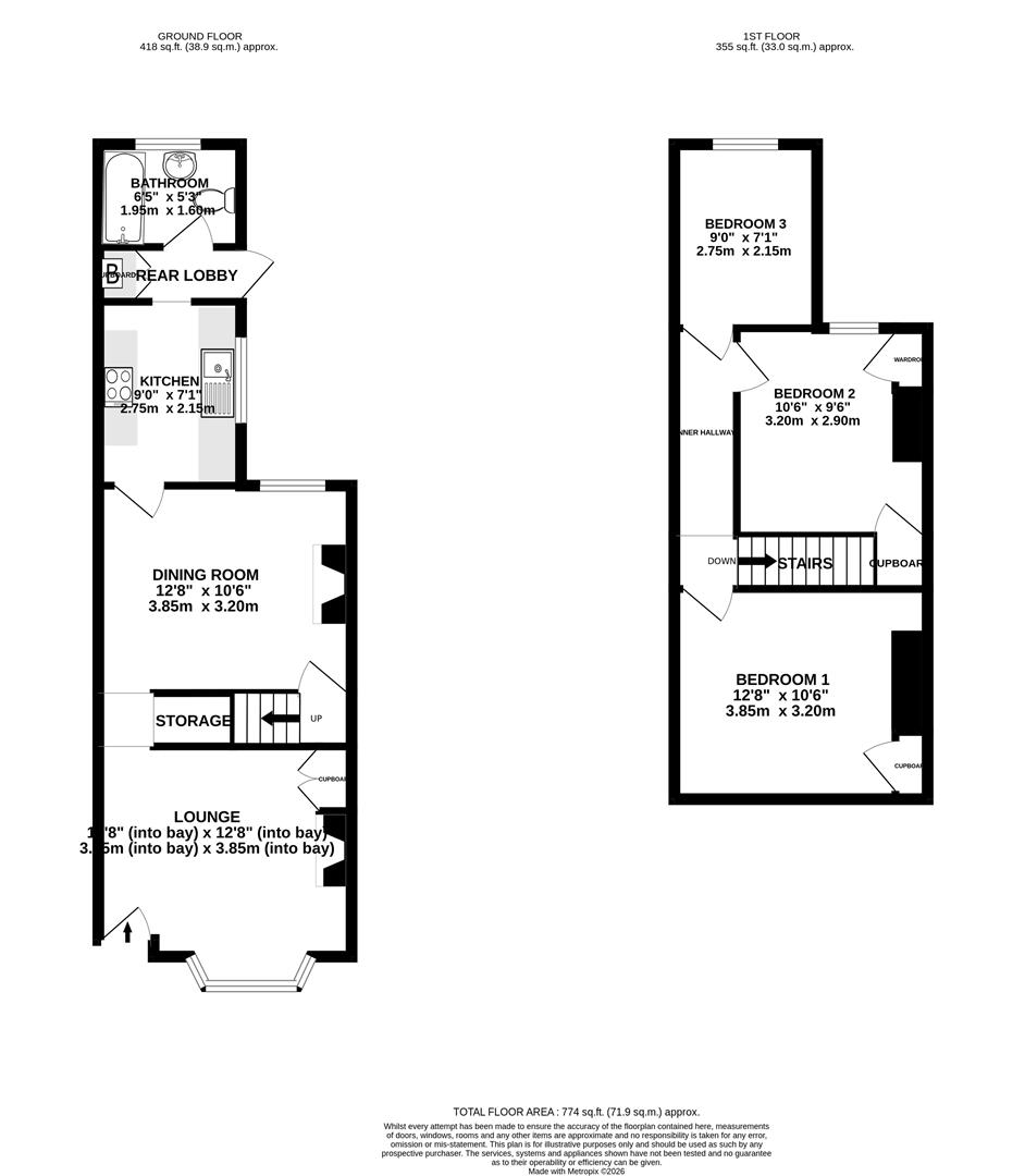
The layout briefly comprises of: Entrance into lounge with cloakroom storage to rear, through to the dining room with doorway access to stairs up to first floor, and through to kitchen, rear lobby, and bathroom; The upstairs landing gives access to three good size bedrooms comprising of two doubles and one single.
Located close to highly regarded local schools for all age groups, Strood station with 35 minute fast trains to London is a brisk walk away, as is the town centre providing a wealth of shopping, dining and leisure facilities. All A2/M2/M20 road links are a short drive away, whilst the nearby Dickensian Rochester High Street offers a further variety of restaurants, bars, boutiques and clubs, as well as the ever popular castle, cathedral and highly sought-after schools. Interest is sure to be strong in this ready-to-move-into family home, we therefore recommend viewing at your earliest convenience to avoid disappointment.
- MID-TERRACE BAY-FRONTED HOUSE
- CUL DE SAC LOCATION
- BEAUTIFULLY PRESENTED THROUGHOUT WITH MANY ORIGINAL CHARACTER FEATURES
- THREE SEPARATE BEDROOMS
- MODERN KITCHEN AND FAMILY BATHROOM
- LOW MAINTENANCE PRIVATE REAR GARDEN
- WALK TO STATION WITH 35 MINUTE FAST TRAINS TO LONDON
- CLOSE TO SOUGHT-AFTER LOCAL SCHOOLS AND ALL A2/M2/M20 ROAD LINKS
- WALK TO HIGH STREET, RESTAURANTS, SHOPPING AND LEISURE AMENITIES
- EPC GRADE D / COUNCIL TAX BAND B / FREEHOLD
Property Details
Lounge
3.85m x 3.85m (into bay) (12'7" x 12'7" (into bay)
Spacious and light room with grey "wood-effect" laminate flooring and white walls continuing throughout the ground floor, original feature fireplace and surround with useful storage cupboard to side, bay window to front, original archway leading to large cloakroom/storage area and through to dining room.
Dining Room
3.85m x 3.2m (12'7" x 10'5")
Another good size room with window to rear, doorway to stairs up to first floor, original feature fireplace and surround, doorway into kitchen from here.
Kitchen
2.75m x 2.15m (9'0" x 7'0")
Stylish modern kitchen with good range of white wall and floor cupboards, grey metro-tile splashbacks, contrasting dark vinyl worktops with integrated electric hob and oven, space for washing and fridge-freezer, window to side, open doorway into rear lobby.
Rear Lobby
2.15m x 0.8m (7'0" x 2'7")
Useful extra space with storage cupboard and boiler, door out to garden doorway into bathroom.
Bathroom
1.95m x 1.6m (6'4" x 5'2")
With white suite consisting of bath with shower over, basin and WC, window to rear, attractive grey and white porcelain wall tiles, grey laminate flooring continued, and white wall radiator.
Landing/Inner Hallway
3.45m x 0.85m (11'3" x 2'9")
Spacious landing with new grey carpet and white walls, giving access to three bedrooms consisting of two doubles and one single.
Bedroom One
3.85m x 3.2m (12'7" x 10'5")
Great size double bedroom with built-in cupboard, two windows to front of house, grey carpet and white walls.
Bedroom Two
3.2m x 2.9m (10'5" x 9'6")
Double bedroom with window to rear, neutral grey carpet and white walls.
Bedroom Three
2.75m x 2.15m (9'0" x 7'0")
Single bedroom with window to rear of property.
Garden
Low maintenance paved rear garden with further hard-standing area to side/rear of house, raised planters, established plants and shrubs, lovely private space.
Agents Note 1
Greenleaf work closely with qualified, trusted and competitive mortgage consultants and local solicitors, enabling clients the time-saving opportunity of keeping all aspects of buying and selling a property under one roof. For this service we receive a fee of between one and two hundred pounds per referral.
Agents Note 2
We endeavour to make our sales particulars accurate and reliable, however, they do not constitute or form part of an offer or any contract and none is to be relied upon as statements of representation or fact. Any services, systems and appliances listed in this specification have not been tested by us and no guarantee as to their operating ability or efficiency is given. All measurements have been taken as a guide to prospective buyers only, If you require clarification or further information on any points, please contact us. Fixtures and fittings other than those mentioned are to be agreed with the seller by separate negotiation.
